概要
|
|
|
|
| 測定の様子 | 測定の様子 |
特徴
|
|
測定手順
|
|
|
|
|
|
| 打設器具打ち込みの様子 | 測定用スピーカー、マイク装着状態 |
測定結果・劣化予測
|
|
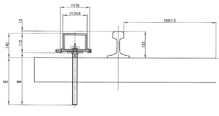
車両接触防止型打設器具のご紹介
|
|
|
|
| サイズ概要 | 完成した打設器具 |
![]() 測定結果画面 |
![]() 劣化予測画面 |
|   | |
製品構成
|
|
![]() 打設器具(外管・内管) |
![]() 測定用マイク |
![]() 測定用タブレット |
![]() 測定用スピーカー |
![]() 測定用スピーカー用カバー |
![]() 測定用スピーカー用台座 |
|   | |
別売りオプション販売品
|
|
![]() バッグ外観) |
![]() バッグ内固定部 |
|
|
参考文献: 鉄道総合技術研究所ニュースリリース「透過音によるバラスト劣化状態検査装置を開発しました」 |
|
|   | |
| 製品のパンフレットはこちらへ | |
| 製品の取扱説明書はこちらへ | |
|   | |
| お見積り依頼、ご購入に関する問合せはこちらへ | |
|   | |
| 戻る | |











